Warszawa, lok. 78
Lokalizacja
Woj.: mazowieckie, Powiat: warszawski, Gmina: Warszawa, dzielnica Ochota,
Grójecka 66
Powierzchnia
gruntu: ha
użytkowa: 26,02 m2
Media
Dotychczasowa funkcja
mieszkalne
Kategoria
Ogłoszenie o przetargu - Sprzedaż
Przetarg w dniu: 24.02.2026r. godz. 10:00
Pozycje przetargowe:
-
Powierzchnia 26,02 m2
Cena wywoławcza 536 000,00 PLN
Oddział Regionalny AMW w Warszawie
Agnieszka Wójcik, Specjalista
(Dział ds. Nieruchomości)
Tel.: 22 326 10 89
E-mail: warszawa@amw.com.pl
Opis nieruchomości
Lokalizacja
W trybie sprzedaży przetargowej AMW oferuje lokal mieszkalny nr 78 zlokalizowany w budynku mieszkalnym wielorodzinnym przy ul. Grójeckiej 66 w Warszawie w dzielnicy Ochota. Ośmiokondygnacyjny budynek jest zarządzany przez wspólnotę mieszkaniową. Obiekt wyposażony jest we wszystkie sieci infrastruktury miejskiej oraz windę.
Nieruchomość zlokalizowana jest przy ul. Grójeckiej, jednej z głównych arterii komunikacyjnych miasta, ok. 3 km od ścisłego centrum. Obszar ten cechuje się wysokim natężeniem ruchu pieszego i kołowego, a także bardzo dobrą dostępnością komunikacyjną. W bezpośrednim sąsiedztwie znajdują się przystanki tramwajowe (ok. 35 m) oraz przystanki autobusowe (ok. 50 m), a także stacja systemu rowerów miejskich Veturilo (ok. 240 m). Z tyłu budynku zorganizowany jest parking, a wokół miejskie stojaki rowerowe. Najbliższe otoczenie nieruchomości to zabudowa mieszkaniowa wielorodzinna, liczne punkty handlowo-usługowe, teatr oraz tereny zieleni: Plac Baśniowy i Park Marii Skłodowskiej-Curie.
Zobacz nieruchomość i jej otoczenie na mapie Geoportalu Krajowego: Warszawa, ul. Grójecka 66
Opis i charakterystyka
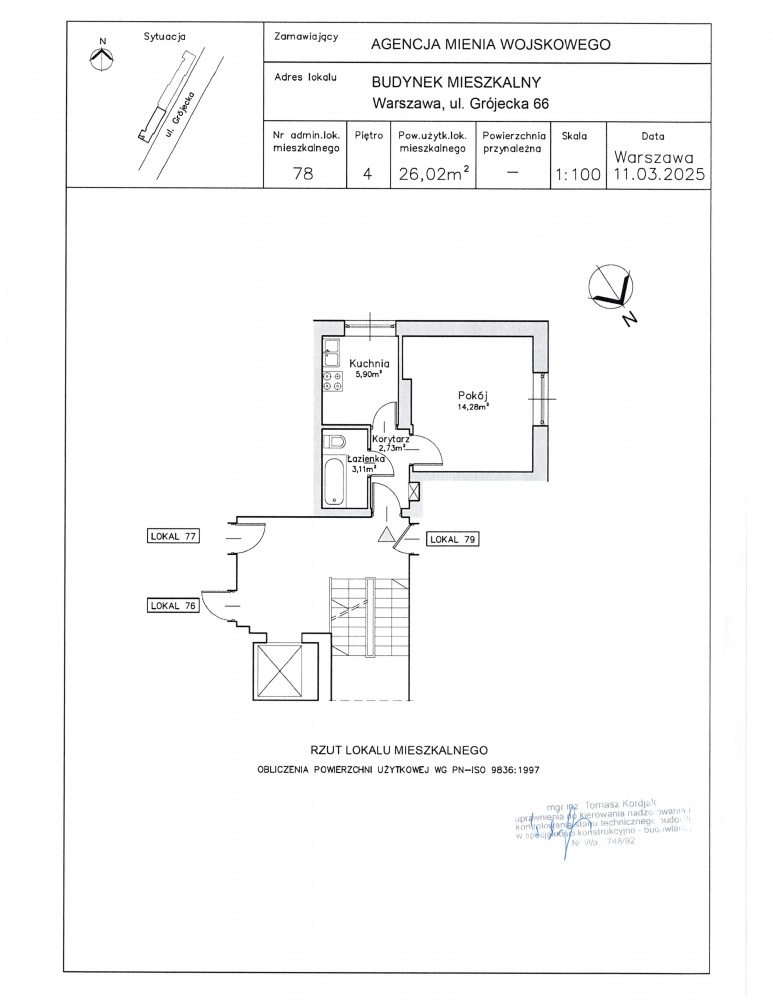
Lokal mieszkalny nr 78 o powierzchni 26,02 m² usytuowany jest na IV piętrze budynku. Składa się z czterech pomieszczeń: pokoju (14,28 m²), korytarza (2,73 m²), kuchni (5,90 m²) oraz łazienki z WC (3,11 m²). Lokal wyróżnia się dwustronną ekspozycją okien w kierunkach: południowo-zachodnim, z boku budynku i północno-zachodnim, od strony podwórza. Mieszkanie nie ma balkonu i wymaga przeprowadzenia prac remontowych. Do lokalu nie jest przypisana piwnica. Mieszkanie wyposażone jest w instalacje: elektryczną, wodno-kanalizacyjną, centralnego ogrzewania oraz gazową.
Pełna treść ogłoszenia w załączniku powyżej.
Szczegóły oferty
Lokal na sprzedaż
Plan sytuacyjny
