Szczecin, dz. 36
Lokalizacja
Woj.: zachodniopomorskie, Powiat: Szczecin, Gmina: Szczecin, Polska
ul. Kosynierów
Powierzchnia
gruntu: 0,7410 ha
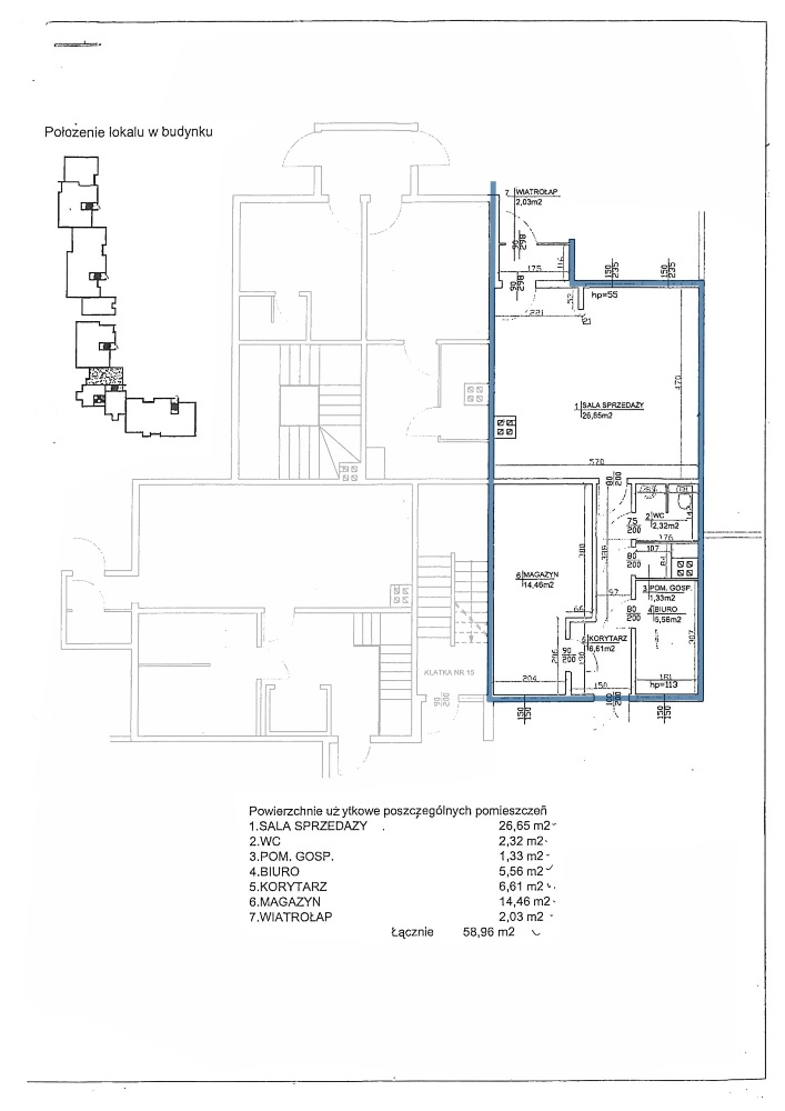
użytkowa: 58,96 m2
Media
Dotychczasowa funkcja
inne (pozostałe)
Kategoria
Wykaz - Najem
Oddział Regionalny AMW w Szczecinie
Iwona Kucharska-Ślusarek, Główny specjalista
(Dział ds. Nieruchomości)
Tel.: (+48 91) 447 20 37
E-mail:
Opis nieruchomości
Lokalizacja
53,374242 14,663351
Opis i charakterystyka
Lokal użytkowy 58,96 m² na wynajem• Osiedle Słoneczne • Idealny na sklep, salon kosmetyczny
Lokal użytkowy nr 8 znajduje się w atrakcyjnej lokalizacji, parter przy ulicy Kosynierów 15, między Osiedlem Słonecznym a Osiedlem Majowym w prawobrzeżnej części Szczecina.
W odległości około 1 do 2 km od nieruchomości znajdują się dyskonty spożywcze, outlet odzieżowy i wielobranżowe centra handlowe. W najbliższej okolicy zlokalizowane są również apteki, gabinety lekarskie i stomatologiczne, przedszkole oraz sklep spożywczy. Około 300 metrów od lokalu dostępna jest pętla autobusowa, na której zatrzymują się zarówno autobusy linii obsługujących lewobrzeże, jak i linie pospieszne kursujące do centrum miasta na lewym brzegu Odry.
Lokal o powierzchni 58,96 m² ma przeszklone wejście od strony ulicy Kosynierów oraz dwa duże okna wystawowe. W jego skład wchodzą: sala sprzedaży (powierzchnia: 26,85 m²), magazyn (14,46 m²) , biuro (5,56 m), małe pomieszczenie gospodarcze (1,33 m), korytarz oraz WC. Atutem jest dodatkowe, sprzyjające odbieraniu dostaw, wejście od strony dziedzińca za budynkiem. Przed lokalem znajdują się ogólnodostępne miejsca parkingowe.
Wcześniej mieścił się tam sklep papierniczy. Po niewielkim odświeżeniu i adaptacji lokal może doskonale sprawdzić się m.in. jako sklep, lokal gastronomiczny czy lokal usługowy, np. gabinet kosmetyczny.
Szczegóły oferty
Więcej szczegółowych informacji w załącznikach „do pobrania”
Plan sytuacyjny
