Leźnica Wielka, dz. 206/25
Lokalizacja
Woj.: łódzkie, Powiat: zgierski, Gmina: Parzęczew,
Blok 3/1A
Powierzchnia
gruntu: ha
użytkowa: 91,17 m2
Media
Kategoria
Kontakt
Oddział Regionalny AMW w Bydgoszczy
Agata Atamańska-Pyrc, Starszy specjalista
(Dział ds. Marketingu i PR)
Tel.: (+48 52) 52 57 847
E-mail:
Opis nieruchomości
Lokalizacja
Zobacz działkę i jej otoczenie na geoportalu krajowym.
Opis i charakterystyka
Do najmu przeznacza się lokal użytkowy usytuowany na parterze 3-kondygnacyjnego budynku mieszkalnego nr 3 na Osiedlu Wojskowym w Leźnicy Wielkiej. Dojazd do nieruchomości odbywa się drogą utwardzoną o nawierzchni asfaltowej. Teren osiedla urządzony jest chodnikami i drogami wewnętrznymi z miejscami parkingowymi oraz pielęgnowaną zielenią. W bloku nr 3, poza przedmiotowym, znajdują się jeszcze inne lokale użytkowe. W pobliżu znajduje się podstawowa sieć handlowo-usługowa, tj. kilka sklepów spożywczo-przemysłowych, poczta i restauracja. Połączenie komunikacyjne stanowi linia autobusowa.
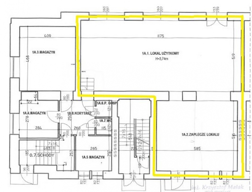
Lokal nr 1A składa się z dwóch pomieszczeń o powierzchni użytkowej: 60,98 m2 (lokal użytkowy) oraz 30,19 m2 (zaplecze lokalu) do własnej aranżacji. Brak sanitariatów, istnieje możliwość podłączenia do istniejących pionów kanalizacyjnych oraz wentylacyjnych i wydzielenie potrzebnych pomieszczeń. Lokal posiada dwa wejścia- od frontu (z witryną na całej długości ściany) oraz od strony zaplecza.
Szczegóły oferty
- położenie nieruchomości w sąsiedztwie osiedla mieszkaniowego,
- teren osiedla urządzony chodnikami i drogami wewnętrznymi z miejscami parkingowymi oraz pielęgnowaną zielenią, urządzonym skwerem z fontanną i dużym placem zabaw dla dzieci,
- uzbrojenie osiedla w: energię elektryczną, wodociągową, ciepłowniczą podłączoną do kotłowni osiedlowej,
- lokal posiada instalacje: elektryczną, centralnego ogrzewania,
- dwa niezależne wejścia do lokalu – od frontu (z witryną na całej długości ściany) oraz od strony zaplecza,
- dostęp do utwardzonej drogi publicznej,
- połączenie komunikacyjne stanowi linia autobusowa,
- oddanie w najem na czas nieoznaczony,
- istnieje możliwość wydzielenia potrzebnych pomieszczeń przez przyszłego najemcę,
- możliwość podłączenia lokalu do istniejących pionów kanalizacyjnych oraz wentylacyjnych.
Plan sytuacyjny
