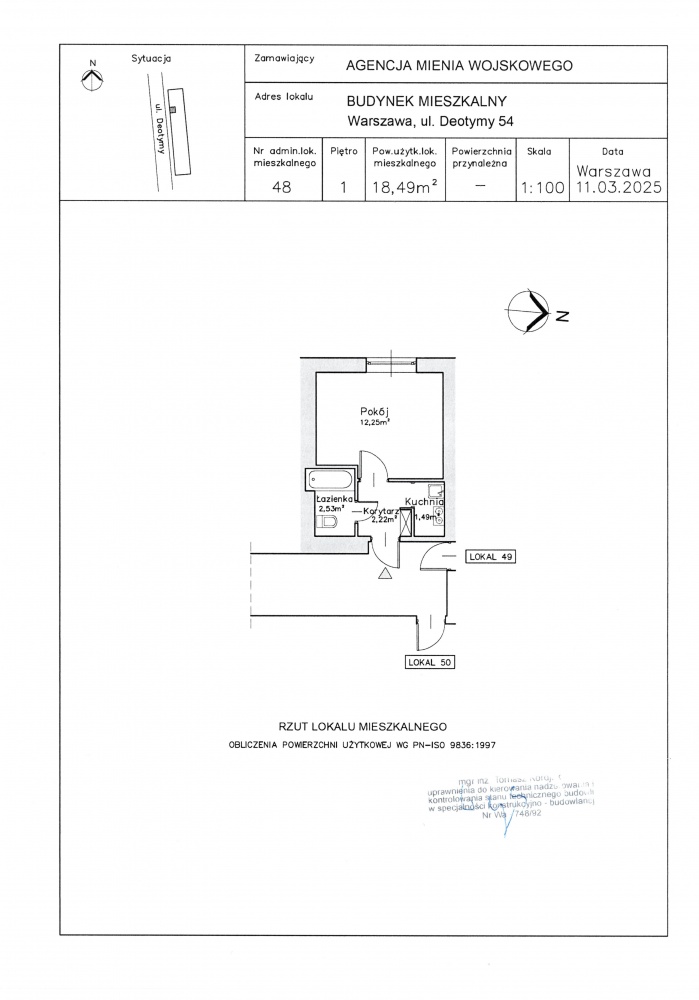
Warszawa, lok. 48
Location
Voi.: mazowieckie, District: warszawski, Community: Warszawa, dzielnica Wola,
Deotymy 54
Surface
land area: ha
useful area: 18,49 m2
Media
So far predominant function
residential
Real estate category
Tender available - Sale
Tender on: 17.03.2026hour 10:00
Tender positions:
-
Surface 18,49 m2
Asking price 340 000,00 PLN
Regional office Warszawa
Agnieszka Wójcik, Specialist
(Real Property Unit)
Phone: 22 326 10 89
E-mail: warszawa@amw.com.pl
Location plan
